震命人建房“门主灶卫”布局案例
收集和分析符合震命人的门主灶卫布局案例,利用建房的自主设计优势,最大限度做到宅命相扶,对你的建房选址,朝向,功能规划一定有所启发。
分类主题:建房
分类主题:建房
八宅风水案例分析
建房
坎命人建房“门主灶卫”布局案例 艮命人建房“门主灶卫”布局案例
震命人建房“门主灶卫”布局案例
巽命人建房“门主灶卫”布局案例
离命人建房“门主灶卫”布局案例
坤命人建房“门主灶卫”布局案例
兑命人建房“门主灶卫”布局案例
乾命人建房“门主灶卫”布局案例
选房
坎宅吉凶分析:三房 艮宅吉凶分析:三房
震宅吉凶分析:三房
巽宅吉凶分析:三房
离宅吉凶分析:三房
坤宅吉凶分析:三房
兑宅吉凶分析:三房
乾宅吉凶分析:三房
坎宅吉凶分析:二房
艮宅吉凶分析:二房
震宅吉凶分析:二房
巽宅吉凶分析:二房
离宅吉凶分析:二房
坤宅吉凶分析:二房
兑宅吉凶分析:二房
乾宅吉凶分析:二房
坎宅吉凶分析:一房
艮宅吉凶分析:一房
震宅吉凶分析:一房
巽宅吉凶分析:一房
离宅吉凶分析:一房
坤宅吉凶分析:一房
兑宅吉凶分析:一房
乾宅吉凶分析:一房
催吉避凶
分析: 安立咨询 文盛
震命人建房“门主灶卫”布局案例
建新房给房主极大的灵活性与方便,从选址,朝向,功能布局,到室内设计与装饰,均可实践宅命相扶的理论。尤其是选址,朝向,和功能布局,为最大限度做到宅命相扶提供了购房或租房难以企及的机会。
按八宅风水理论, 震命人最好居于震宅,这实际上已经限定了住宅朝向,即坐东朝西。但是,这只是其一。宅内的门主灶卫布局也大有讲究,配置不当,不吉反凶。
本文首先回应谁是震命人,然后分享一些门主灶卫布局精当的震宅案例,体现震宅震命,宅命相扶,门主灶卫,吉凶相安。如果你笃信风水环境,它们一定会为你和你的设计师提供启发和灵感。
例如,以下年份出生的人即为震命。
男性:1961, 1970, 1979, 1988, 1997, 2006, 2015。
女性:1961, 1970, 1979, 1988, 1997, 2006, 2015。
命卦也可由 智能工具计算:计算命卦
如果你由自己的布局设计,亦可以用智能工具分析:吉凶分析

按八宅风水理论, 震命人最好居于震宅,这实际上已经限定了住宅朝向,即坐东朝西。但是,这只是其一。宅内的门主灶卫布局也大有讲究,配置不当,不吉反凶。
本文首先回应谁是震命人,然后分享一些门主灶卫布局精当的震宅案例,体现震宅震命,宅命相扶,门主灶卫,吉凶相安。如果你笃信风水环境,它们一定会为你和你的设计师提供启发和灵感。
一、谁是震命人
如果你是宅主,住宅的风水与的命卦有关。每个人的命卦由其出身年份与性别决定。例如,以下年份出生的人即为震命。
男性:1961, 1970, 1979, 1988, 1997, 2006, 2015。
女性:1961, 1970, 1979, 1988, 1997, 2006, 2015。
命卦也可由 智能工具计算:计算命卦
二、案例分析
本节旨在分享一些较好的案例,以利参照和学习。如果你由自己的布局设计,亦可以用智能工具分析:吉凶分析
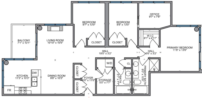
户型 1:温哥华山景公寓
宅卦: 震(门向西)

门: 287(°) 辛山 方位-兑 绝命: 坐凶向吉
主: 180(°) 午山 方位-离 生气: 坐吉向吉 ++
灶: 333(°) 亥山 方位-乾 五鬼: 坐凶向吉 +
卫: 235(°) 申山 方位-坤 祸害: 坐凶向凶 ++
综合分数为5,好的卦象。
门: 287(°) 辛山 方位-兑 绝命: 坐凶向吉
主: 180(°) 午山 方位-离 生气: 坐吉向吉 ++
灶: 333(°) 亥山 方位-乾 五鬼: 坐凶向吉 +
卫: 235(°) 申山 方位-坤 祸害: 坐凶向凶 ++
综合分数为5,好的卦象。