巽宅吉凶分析:二房
收集二房巽宅的案例,按门主灶卫的分布吉凶,给出该住宅吉凶的总体评判,以及符合宅命相扶原则的住户的出身年份与性别。你可以使用智能工具分析自己的案例,不论是租房或是购房,一定有所启发。
分类主题:选房
分类主题:选房
八宅风水案例分析
建房
坎命人建房“门主灶卫”布局案例 艮命人建房“门主灶卫”布局案例
震命人建房“门主灶卫”布局案例
巽命人建房“门主灶卫”布局案例
离命人建房“门主灶卫”布局案例
坤命人建房“门主灶卫”布局案例
兑命人建房“门主灶卫”布局案例
乾命人建房“门主灶卫”布局案例
选房
坎宅吉凶分析:三房 艮宅吉凶分析:三房
震宅吉凶分析:三房
巽宅吉凶分析:三房
离宅吉凶分析:三房
坤宅吉凶分析:三房
兑宅吉凶分析:三房
乾宅吉凶分析:三房
坎宅吉凶分析:二房
艮宅吉凶分析:二房
震宅吉凶分析:二房
巽宅吉凶分析:二房
离宅吉凶分析:二房
坤宅吉凶分析:二房
兑宅吉凶分析:二房
乾宅吉凶分析:二房
坎宅吉凶分析:一房
艮宅吉凶分析:一房
震宅吉凶分析:一房
巽宅吉凶分析:一房
离宅吉凶分析:一房
坤宅吉凶分析:一房
兑宅吉凶分析:一房
乾宅吉凶分析:一房
催吉避凶
分析: 安立咨询 文盛
巽宅吉凶分析:二房
现在房地产进入了买方市场,不论是租房或是购房,有大量的房源可以选择。这为我们寻找风水好,且与自身命卦相宜的居所提供了难得的机会。
按八宅风水理论,按住宅的主进气口可以确定其宅卦,如大门向西北,即为巽宅。 由其门主灶卫的分布,它可以是吉宅,也可以是凶宅。更进一步,即使是吉宅,也有选择性,只适合部分人居住。
本文收集二房巽宅的案例,分析有两步:第一,判断巽宅的吉凶;第二,如果是向吉,给出适合居住者的出身年份与性别。
你可以用智能工具分析自己的案例: 吉凶分析
是否巽宅?你可用罗盘现场测量或加载平面图到:图解宅卦

按八宅风水理论,按住宅的主进气口可以确定其宅卦,如大门向西北,即为巽宅。 由其门主灶卫的分布,它可以是吉宅,也可以是凶宅。更进一步,即使是吉宅,也有选择性,只适合部分人居住。
本文收集二房巽宅的案例,分析有两步:第一,判断巽宅的吉凶;第二,如果是向吉,给出适合居住者的出身年份与性别。
你可以用智能工具分析自己的案例: 吉凶分析
是否巽宅?你可用罗盘现场测量或加载平面图到:图解宅卦
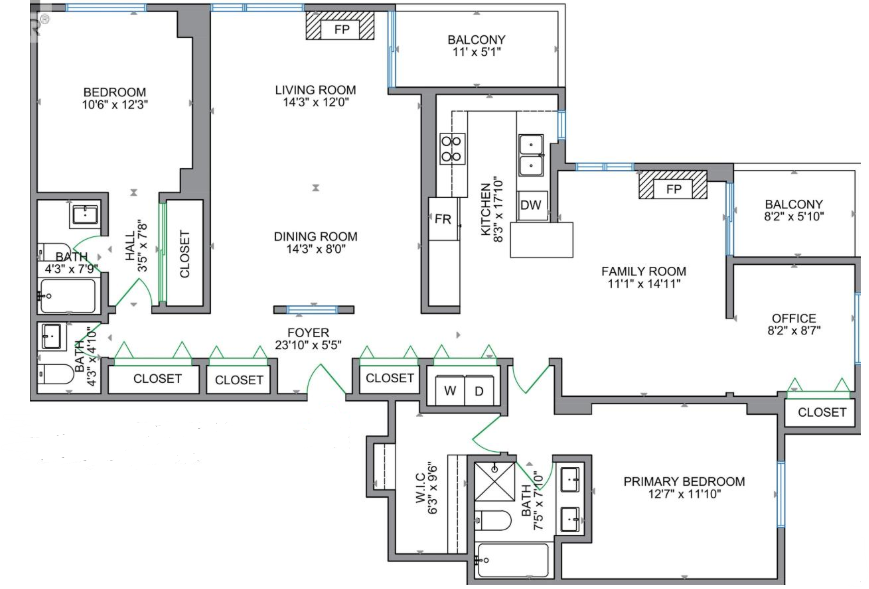
二房户型 1:温哥华山景公寓
宅卦: 巽(门向西北)

门: 359(°) 子山 方位-坎 生气: 坐吉向吉 ++
主: 268(°) 酉山 方位-兑 六煞: 坐凶向吉
卫: 35(°) 丑山 方位-艮 绝命: 坐凶向凶 ++
灶: 140(°) 巽山 方位-巽 伏位: 坐吉向凶
综合分数为4,较好的卦象,但需要崔吉避凶。此宅卦为巽,属于东四命。按宅命相扶,以下年份出生的巽命人入住最为恰当。
男性:1960, 1969, 1978, 1987, 1996, 2005, 2014。
女性:1962, 1971, 1980, 1989, 1998, 2007, 2016。
此外,以下年份出生的人同属东四命。亦有宅命相扶之效,入住也为恰当。
男性:1961(震), 1963(坎), 1964(离), 1970(震), 1972(坎), 1973(离), 1979(震), 1981(坎), 1982(离), 1988(震), 1990(坎), 1991(离), 1997(震), 1999(坎), 2000(离), 2006(震), 2008(坎), 2009(离), 2015(震), 2017(坎), 2018(离)。
女性:1961(震), 1967(离), 1968(坎), 1970(震), 1976(离), 1977(坎), 1979(震), 1985(离), 1986(坎), 1988(震), 1994(离), 1995(坎), 1997(震), 2003(离), 2004(坎), 2006(震), 2012(离), 2013(坎), 2015(震)。
门: 359(°) 子山 方位-坎 生气: 坐吉向吉 ++
主: 268(°) 酉山 方位-兑 六煞: 坐凶向吉
卫: 35(°) 丑山 方位-艮 绝命: 坐凶向凶 ++
灶: 140(°) 巽山 方位-巽 伏位: 坐吉向凶
综合分数为4,较好的卦象,但需要崔吉避凶。此宅卦为巽,属于东四命。按宅命相扶,以下年份出生的巽命人入住最为恰当。
男性:1960, 1969, 1978, 1987, 1996, 2005, 2014。
女性:1962, 1971, 1980, 1989, 1998, 2007, 2016。
此外,以下年份出生的人同属东四命。亦有宅命相扶之效,入住也为恰当。
男性:1961(震), 1963(坎), 1964(离), 1970(震), 1972(坎), 1973(离), 1979(震), 1981(坎), 1982(离), 1988(震), 1990(坎), 1991(离), 1997(震), 1999(坎), 2000(离), 2006(震), 2008(坎), 2009(离), 2015(震), 2017(坎), 2018(离)。
女性:1961(震), 1967(离), 1968(坎), 1970(震), 1976(离), 1977(坎), 1979(震), 1985(离), 1986(坎), 1988(震), 1994(离), 1995(坎), 1997(震), 2003(离), 2004(坎), 2006(震), 2012(离), 2013(坎), 2015(震)。