坤宅吉凶分析:一房
收集一房坤宅的案例,按门主灶卫的分布吉凶,给出该住宅吉凶的总体评判,以及符合宅命相扶原则的住户的出身年份与性别。你可以使用智能工具分析自己的案例,不论是租房或是购房,一定有所启发。
分类主题:选房
分类主题:选房
八宅风水案例分析
建房
坎命人建房“门主灶卫”布局案例 艮命人建房“门主灶卫”布局案例
震命人建房“门主灶卫”布局案例
巽命人建房“门主灶卫”布局案例
离命人建房“门主灶卫”布局案例
坤命人建房“门主灶卫”布局案例
兑命人建房“门主灶卫”布局案例
乾命人建房“门主灶卫”布局案例
选房
坎宅吉凶分析:三房 艮宅吉凶分析:三房
震宅吉凶分析:三房
巽宅吉凶分析:三房
离宅吉凶分析:三房
坤宅吉凶分析:三房
兑宅吉凶分析:三房
乾宅吉凶分析:三房
坎宅吉凶分析:二房
艮宅吉凶分析:二房
震宅吉凶分析:二房
巽宅吉凶分析:二房
离宅吉凶分析:二房
坤宅吉凶分析:二房
兑宅吉凶分析:二房
乾宅吉凶分析:二房
坎宅吉凶分析:一房
艮宅吉凶分析:一房
震宅吉凶分析:一房
巽宅吉凶分析:一房
离宅吉凶分析:一房
坤宅吉凶分析:一房
兑宅吉凶分析:一房
乾宅吉凶分析:一房
催吉避凶
分析: 安立咨询 文盛
坤宅吉凶分析:一房
现在房地产进入了买方市场,不论是租房或是购房,有大量的房源可以选择。这为我们寻找风水好,且与自身命卦相宜的居所提供了难得的机会。
按八宅风水理论,按住宅的主进气口可以确定其宅卦,如大门向东北,即为坤宅。 由其门主灶卫的分布,它可以是吉宅,也可以是凶宅。更进一步,即使是吉宅,也有选择性,只适合部分人居住。
本文收集一房坤宅的案例,分析有两步:第一,判断坤宅的吉凶;第二,如果是向吉,给出适合居住者的出身年份与性别。
你可以用智能工具分析自己的案例: 吉凶分析
是否坤宅?你可用罗盘现场测量或加载平面图到:图解宅卦


按八宅风水理论,按住宅的主进气口可以确定其宅卦,如大门向东北,即为坤宅。 由其门主灶卫的分布,它可以是吉宅,也可以是凶宅。更进一步,即使是吉宅,也有选择性,只适合部分人居住。
本文收集一房坤宅的案例,分析有两步:第一,判断坤宅的吉凶;第二,如果是向吉,给出适合居住者的出身年份与性别。
你可以用智能工具分析自己的案例: 吉凶分析
是否坤宅?你可用罗盘现场测量或加载平面图到:图解宅卦
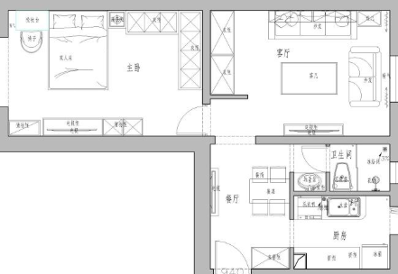
一房户型 1:伦敦苏里无界公寓
宅卦:坤(门向东北)

门: 53(°) 寅山 方位-艮 生气: 坐吉向吉 ++
主: 293(°) 戌山 方位-乾 延年: 坐吉向凶 +
灶: 91(°) 卯山 方位-震 祸害: 坐凶向吉 +
卫: 8(°) 癸山 方位-坎 绝命: 坐凶向凶 ++
综合分数为6,极好的卦象。此宅卦为坤,属于西四命。按宅命相扶,以下年份出生的坤命人入住最为恰当。
男性:1962, 1968, 1971, 1977, 1980, 1986, 1989, 1995, 1998, 2004, 2007, 2013, 2016。
女性:1960, 1969, 1978, 1987, 1996, 2005, 2014。
此外,以下年份出生的人同属西四命。亦有宅命相扶之效,入住也为恰当。
男性:1965(艮), 1966(兑), 1967(乾), 1974(艮), 1975(兑), 1976(乾), 1983(艮), 1984(兑), 1985(乾), 1992(艮), 1993(兑), 1994(乾), 2001(艮), 2002(兑), 2003(乾), 2010(艮), 2011(兑), 2012(乾), 2019(艮), 2020(兑)。
女性:1963(艮), 1964(乾), 1965(兑), 1966(艮), 1972(艮), 1973(乾), 1974(兑), 1975(艮), 1981(艮), 1982(乾), 1983(兑), 1984(艮), 1990(艮), 1991(乾), 1992(兑), 1993(艮), 1999(艮), 2000(乾), 2001(兑), 2002(艮), 2008(艮), 2009(乾), 2010(兑), 2011(艮), 2017(艮), 2018(乾), 2019(兑), 2020(艮)。
门: 53(°) 寅山 方位-艮 生气: 坐吉向吉 ++
主: 293(°) 戌山 方位-乾 延年: 坐吉向凶 +
灶: 91(°) 卯山 方位-震 祸害: 坐凶向吉 +
卫: 8(°) 癸山 方位-坎 绝命: 坐凶向凶 ++
综合分数为6,极好的卦象。此宅卦为坤,属于西四命。按宅命相扶,以下年份出生的坤命人入住最为恰当。
男性:1962, 1968, 1971, 1977, 1980, 1986, 1989, 1995, 1998, 2004, 2007, 2013, 2016。
女性:1960, 1969, 1978, 1987, 1996, 2005, 2014。
此外,以下年份出生的人同属西四命。亦有宅命相扶之效,入住也为恰当。
男性:1965(艮), 1966(兑), 1967(乾), 1974(艮), 1975(兑), 1976(乾), 1983(艮), 1984(兑), 1985(乾), 1992(艮), 1993(兑), 1994(乾), 2001(艮), 2002(兑), 2003(乾), 2010(艮), 2011(兑), 2012(乾), 2019(艮), 2020(兑)。
女性:1963(艮), 1964(乾), 1965(兑), 1966(艮), 1972(艮), 1973(乾), 1974(兑), 1975(艮), 1981(艮), 1982(乾), 1983(兑), 1984(艮), 1990(艮), 1991(乾), 1992(兑), 1993(艮), 1999(艮), 2000(乾), 2001(兑), 2002(艮), 2008(艮), 2009(乾), 2010(兑), 2011(艮), 2017(艮), 2018(乾), 2019(兑), 2020(艮)。
一房户型 2:未知公寓
宅卦:坤(门向东北)

门: 16(°) 癸山 方位-坎 绝命: 坐凶向凶 -
灶: 347(°) 壬山 方位-坎 绝命: 坐凶向凶 -
卫: 317(°) 乾山 方位-乾 延年: 坐吉向凶 -
主: 142(°) 巽山 方位-巽 五鬼: 坐凶向吉
综合分数为-3,卦象差,强烈建议调整回避。
门: 16(°) 癸山 方位-坎 绝命: 坐凶向凶 -
灶: 347(°) 壬山 方位-坎 绝命: 坐凶向凶 -
卫: 317(°) 乾山 方位-乾 延年: 坐吉向凶 -
主: 142(°) 巽山 方位-巽 五鬼: 坐凶向吉
综合分数为-3,卦象差,强烈建议调整回避。