坎宅吉凶分析:一房
收集一房坎宅的案例,按门主灶卫的分布吉凶,给出该住宅吉凶的总体评判,以及符合宅命相扶原则的住户的出身年份与性别。你可以使用智能工具分析自己的案例,不论是租房或是购房,一定有所启发。
分类主题:选房
分类主题:选房
八宅风水案例分析
建房
坎命人建房“门主灶卫”布局案例 艮命人建房“门主灶卫”布局案例
震命人建房“门主灶卫”布局案例
巽命人建房“门主灶卫”布局案例
离命人建房“门主灶卫”布局案例
坤命人建房“门主灶卫”布局案例
兑命人建房“门主灶卫”布局案例
乾命人建房“门主灶卫”布局案例
选房
坎宅吉凶分析:三房 艮宅吉凶分析:三房
震宅吉凶分析:三房
巽宅吉凶分析:三房
离宅吉凶分析:三房
坤宅吉凶分析:三房
兑宅吉凶分析:三房
乾宅吉凶分析:三房
坎宅吉凶分析:二房
艮宅吉凶分析:二房
震宅吉凶分析:二房
巽宅吉凶分析:二房
离宅吉凶分析:二房
坤宅吉凶分析:二房
兑宅吉凶分析:二房
乾宅吉凶分析:二房
坎宅吉凶分析:一房
艮宅吉凶分析:一房
震宅吉凶分析:一房
巽宅吉凶分析:一房
离宅吉凶分析:一房
坤宅吉凶分析:一房
兑宅吉凶分析:一房
乾宅吉凶分析:一房
催吉避凶
分析: 安立咨询 文盛
坎宅吉凶分析:一房
现在房地产进入了买方市场,不论是租房或是购房,有大量的房源可以选择。这为我们寻找风水好,且与自身命卦相宜的居所提供了难得的机会。
按八宅风水理论,按住宅的主进气口可以确定其宅卦,如大门向南,即为坎宅。 由其门主灶卫的分布,它可以是吉宅,也可以是凶宅。更进一步,即使是吉宅,也有选择性,只适合部分人居住。
本文收集一房坎宅的案例,分析有两步:第一,判断坎宅的吉凶;第二,如果是向吉,给出适合居住者的出身年份与性别。
你可以用智能工具分析自己的案例: 吉凶分析
是否坎宅?你可用罗盘现场测量或加载平面图到:图解宅卦


按八宅风水理论,按住宅的主进气口可以确定其宅卦,如大门向南,即为坎宅。 由其门主灶卫的分布,它可以是吉宅,也可以是凶宅。更进一步,即使是吉宅,也有选择性,只适合部分人居住。
本文收集一房坎宅的案例,分析有两步:第一,判断坎宅的吉凶;第二,如果是向吉,给出适合居住者的出身年份与性别。
你可以用智能工具分析自己的案例: 吉凶分析
是否坎宅?你可用罗盘现场测量或加载平面图到:图解宅卦
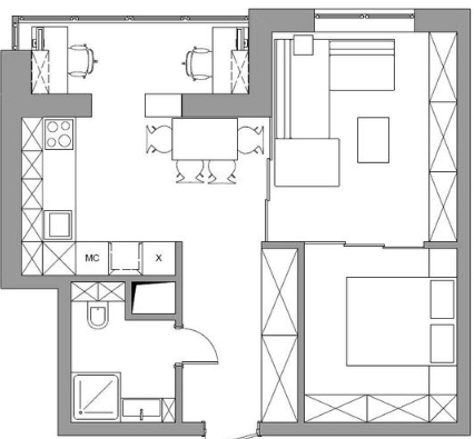
一房户型 1:多伦多乔王山公寓
宅卦:坎(门向南)

门: 206(°) 未山 方位-坤 绝命: 坐凶向凶 -
主: 156(°) 巳山 方位-巽 生气: 坐吉向凶 +
卫: 183(°) 午山 方位-离 延年: 坐吉向吉 --
灶: 285(°) 辛山 方位-兑 祸害: 坐凶向吉 +
综合分数为-1,卦象差,强烈建议调整回避。
门: 206(°) 未山 方位-坤 绝命: 坐凶向凶 -
主: 156(°) 巳山 方位-巽 生气: 坐吉向凶 +
卫: 183(°) 午山 方位-离 延年: 坐吉向吉 --
灶: 285(°) 辛山 方位-兑 祸害: 坐凶向吉 +
综合分数为-1,卦象差,强烈建议调整回避。
一房户型 2:重庆天街公寓
宅卦:坎(门向南)

门: 183(°) 午山 方位-离 延年: 坐吉向吉 ++
主: 114(°) 辰山 方位-巽 生气: 坐吉向凶 +
灶: 296(°) 戌山 方位-乾 六煞: 坐凶向吉 +
卫: 235(°) 申山 方位-坤 绝命: 坐凶向凶 ++
综合分数为6,极好的卦象。此宅卦为坎,属于东四命。按宅命相扶,以下年份出生的坎命人入住最为恰当。
男性:1963, 1972, 1981, 1990, 1999, 2008, 2017。
女性:1968, 1977, 1986, 1995, 2004, 2013。
此外,以下年份出生的人同属东四命。亦有宅命相扶之效,入住也为恰当。
男性:1960(巽), 1961(震), 1964(离), 1969(巽), 1970(震), 1973(离), 1978(巽), 1979(震), 1982(离), 1987(巽), 1988(震), 1991(离), 1996(巽), 1997(震), 2000(离), 2005(巽), 2006(震), 2009(离), 2014(巽), 2015(震), 2018(离)。
女性:1961(震), 1962(巽), 1967(离), 1970(震), 1971(巽), 1976(离), 1979(震), 1980(巽), 1985(离), 1988(震), 1989(巽), 1994(离), 1997(震), 1998(巽), 2003(离), 2006(震), 2007(巽), 2012(离), 2015(震), 2016(巽)。
门: 183(°) 午山 方位-离 延年: 坐吉向吉 ++
主: 114(°) 辰山 方位-巽 生气: 坐吉向凶 +
灶: 296(°) 戌山 方位-乾 六煞: 坐凶向吉 +
卫: 235(°) 申山 方位-坤 绝命: 坐凶向凶 ++
综合分数为6,极好的卦象。此宅卦为坎,属于东四命。按宅命相扶,以下年份出生的坎命人入住最为恰当。
男性:1963, 1972, 1981, 1990, 1999, 2008, 2017。
女性:1968, 1977, 1986, 1995, 2004, 2013。
此外,以下年份出生的人同属东四命。亦有宅命相扶之效,入住也为恰当。
男性:1960(巽), 1961(震), 1964(离), 1969(巽), 1970(震), 1973(离), 1978(巽), 1979(震), 1982(离), 1987(巽), 1988(震), 1991(离), 1996(巽), 1997(震), 2000(离), 2005(巽), 2006(震), 2009(离), 2014(巽), 2015(震), 2018(离)。
女性:1961(震), 1962(巽), 1967(离), 1970(震), 1971(巽), 1976(离), 1979(震), 1980(巽), 1985(离), 1988(震), 1989(巽), 1994(离), 1997(震), 1998(巽), 2003(离), 2006(震), 2007(巽), 2012(离), 2015(震), 2016(巽)。